豊島区・板橋区・北区・中古マンション売買専門|ハウジングハーモニー・優和 > (マンション(売買))地域から探す > 北区 > 東高西ケ原ペアシティ
新着情報:東高西ケ原ペアシティの空室情報ならコチラ。13.06㎡のバルコニー付き物件です。防犯カメラが付いていますので、防犯対策を気にされる方でも安心です。63.8㎡の専有面積がある物件です。
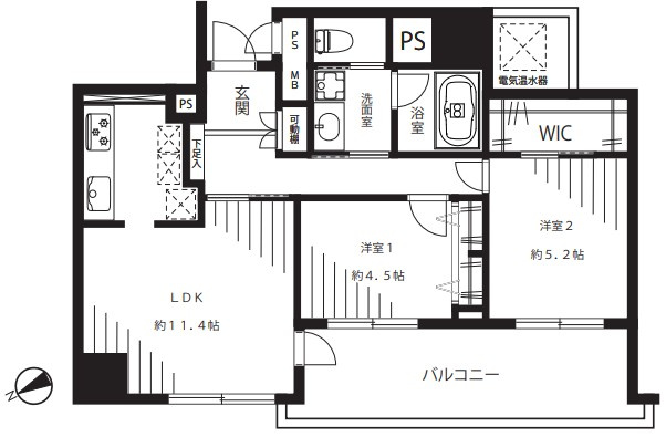
※写真や図と実際の現状とが異なる場合は現状を優先させていただきます。











(※元利均等方式 金利5.00%まで ※返済年数5~50年まで入力できます)
(※ボーナスは年2回で計算しています。1000万円まで入力できます)
(※物件購入時、その他諸費用が発生する場合がございます)
| 所在地 | 東京都北区西ケ原1丁目30-1 | ||
|---|---|---|---|
| 交通 | |||
| 間取り/詳細 |
2LDK LDK 11.4帖 1室/洋室 5.2帖 1室/洋室 4.5帖 1室 |
||
| 専有面積/バルコニー面積 | 63.80㎡/13.06㎡ | ルーフバルコニー面積/テラス面積/専用庭面積 | -/-/- |
| 価格 | 5,980万円 | ||
| 管理費 | 16,880円 | ||
| 修繕積立金 | 6,380円 | 修繕積立基金 | - |
| 権利金 | - | 駐車場/月額料金 | 空有/25,000円 (税込) |
| 土地の敷金/保証金 | -/- | 借地料/借地期間 | 6,195円/2040年07月まで |
| 土地権利 | 旧法賃借権 | 国土法届出要否 | 不要 |
| 用途地域 | 第一種中高層住居専用/近隣商業 | 地勢 | 平坦 |
| 種別/構造 | 中古マンション/鉄骨鉄筋コンクリート | 向き | 西 |
| 築年月(築年数) | 1992年 11月 (築33年) | ||
| 所在階/階建 | 2階/14階建 地下1階 | 棟総戸数/販売戸数 | 74戸/1戸 |
| 管理組合有無 | 有 | 管理形態 | 管理会社に全部委託 |
| 管理員の勤務形態 | 日勤 | 管理会社 | 明和地所コミュニティ株式会社 |
| 取引態様 | 一般媒介 | 現況 | 空家 |
| 引渡し | 即時 | 建築確認番号 | - |
| 物件番号 | 100410817 | 取引条件の有効期限 | 2026年02月08日 |
| リフォーム |
2025年12月 キッチン 浴室 トイレ 壁 床 全室 |
||
| 設備条件 |
|
||
| 備考 |
【アピールポイント】 オートロック!ホテルライクな内廊下! 修繕積立金総額2.5憶円越え(2024年12月現在) 長期修繕計画有! ペット飼育可! アフターサービス保証付き! 【リフォーム内容】~2025年12月室内リフォーム実施~ システムキッチン交換(浄⽔器付)、浴室交換(浴室暖房乾燥機付)、洗⾯化粧台、温水洗浄便座交換、洗濯⽤防⽔パン、給湯器交換、専有部分内排⽔管⼀部交換、フローリング貼替、クロス貼替、建具交換、シューズボックス交換、ダウンライト設置、ハウスクリーニング等実施 【インフォメーション】 セブンイレブン北区西ケ原2丁目店・・・徒歩2分 まいばすけっと西ヶ原3丁目店・・・徒歩5分 マルエツプチ上中里店・・・徒歩7分 花と森の東京病院・・・徒歩3分 滝野川公園・・・徒歩6分 【学区域】 北区立滝野川小学校・・・徒歩6分 北区立飛鳥中学校・・・徒歩2分 |
||
| 条件(その他) | 外部協力金月:3,000円 | ||
| 取扱会社 |
|
||
| QRコード |
このQRコードを読み取ることで、スマホでも物件情報を確認できます。 |
||
※地図上に表示される物件の位置は付近住所に所在することを表すものであり、実際の物件所在地とは異なる場合がございます。
東高西ケ原ペアシティに関するこだわり条件から探す