豊島区・板橋区・北区・中古マンション売買専門|ハウジングハーモニー・優和 > (マンション(売買))地域から探す > 板橋区 > パークハウス大山
動線を意識したデザインのシステムキッチン付きで作業能率が上がります。寒い時期に活躍する追焚機能付きの浴室がある物件です。きれいで便利な中古マンションで優雅な生活をおくりましょう。
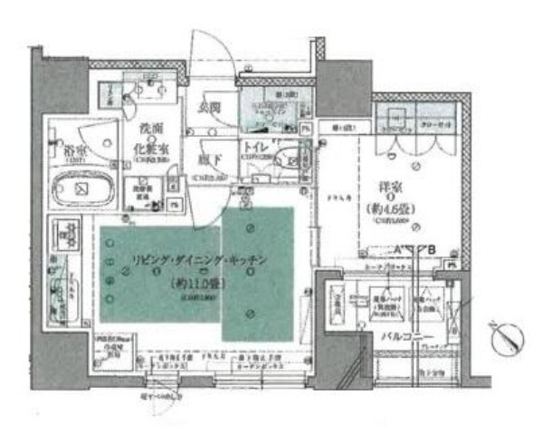
※写真や図と実際の現状とが異なる場合は現状を優先させていただきます。











(※元利均等方式 金利5.00%まで ※返済年数5~50年まで入力できます)
(※ボーナスは年2回で計算しています。1000万円まで入力できます)
(※物件購入時、その他諸費用が発生する場合がございます)
| 所在地 | 東京都板橋区大山町22-2 | ||
|---|---|---|---|
| 交通 | |||
| 間取り/詳細 |
1LDK LDK 11.0帖 1室/洋室 4.6帖 1室 |
||
| 専有面積/バルコニー面積 | 39.95㎡/5.52㎡ | ルーフバルコニー面積/テラス面積/専用庭面積 | -/-/- |
| 価格 | 5,180万円 | ||
| 管理費 | 14,608円 | ||
| 修繕積立金 | 7,000円 | 修繕積立基金 | - |
| 権利金 | - | 駐車場/月額料金 | 空無/- |
| 土地の敷金/保証金 | -/- | 借地料/借地期間 | -/- |
| 土地権利 | 所有権 | 国土法届出要否 | 不要 |
| 用途地域 | 商業 | 地勢 | 平坦 |
| 種別/構造 | 中古マンション/鉄筋コンクリート | 向き | 南西 |
| 築年月(築年数) | 2009年 7月 (築16年) | ||
| 所在階/階建 | 2階/14階建 地下1階 | 棟総戸数/販売戸数 | 39戸/1戸 |
| 管理組合有無 | 有 | 管理形態 | 管理会社に全部委託 |
| 管理員の勤務形態 | 巡回 | 管理会社 | 三菱地所コミュニティ株式会社 |
| 取引態様 | 仲介 | 現況 | 空家 |
| 引渡し | 即時 | 建築確認番号 | - |
| 物件番号 | 99034012 | 取引条件の有効期限 | 2026年03月27日 |
| リフォーム |
2025年10月 キッチン 浴室 トイレ 壁 床 全室 |
||
| 設備条件 |
|
||
| 備考 |
【こんな方におすすめ】 おしゃれなアクセントウォールを探している! 空間はスッキリ見せたいけど、生活感は隠しきれない! 子どもやペットがいても、空気はきれいに保ちたい! 【アピールポイント】 アクセス・利便性・住環境の整った好立地! ペット飼育相談可能(規約等制限あり) ホテルライクな内廊下設計! 天井高2.6m(LDK・洋室) 床暖房あり(LDK) 【リフォーム内容】~2025年10月室内リフォーム実施~ システムキッチン交換(浄⽔器付)、浴室交換(浴室暖房乾燥機付)、洗⾯化粧台、温水洗浄便座交換、洗濯⽤防⽔パン、⽔栓交換、給湯器交換、専有部分内排⽔管⼀部交換、フローリング貼替、フロアタイル貼替、クロス貼替、建具交換、シューズボックス交換、ダウンライト設置、ハウスクリーニング等実施 【ライフインフォメーション】 コモディイイダ大山店・・・徒歩2分 セーヌよしや大山店・・・徒歩4分 田崎病院・・・徒歩2分 セブンイレブン大山西町店・・・徒歩1分 【学区域】 板橋区立板橋第六小学校・・・徒歩2分 板橋区立板橋第一中学校・・・徒歩9分 |
||
| 取扱会社 |
|
||
| QRコード |
このQRコードを読み取ることで、スマホでも物件情報を確認できます。 |
||
※地図上に表示される物件の位置は付近住所に所在することを表すものであり、実際の物件所在地とは異なる場合がございます。
パークハウス大山に関するこだわり条件から探す
板橋区の町名から探す