豊島区・板橋区・北区・中古マンション売買専門|ハウジングハーモニー・優和 > (マンション(売買))地域から探す > 板橋区 > ライオンズヴィアーレ成増
こだわりで選びたい方におすすめ。板橋区エリアで住まいをお探しなら「ライオンズヴィアーレ成増」。追い焚き機能付の浴室です。広々としたリビングに充実設備のキッチンを備えた3LDK。
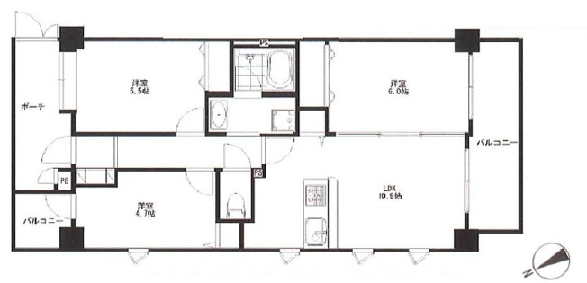
※写真や図と実際の現状とが異なる場合は現状を優先させていただきます。











(※元利均等方式 金利5.00%まで ※返済年数5~50年まで入力できます)
(※ボーナスは年2回で計算しています。1000万円まで入力できます)
(※物件購入時、その他諸費用が発生する場合がございます)
| 所在地 | 東京都板橋区成増3丁目51-8 | ||
|---|---|---|---|
| 交通 | |||
| 間取り/詳細 |
3LDK LDK 10.9帖 1室/洋室 6.0帖 1室/洋室 5.5帖 1室/洋室 4.7帖 1室 |
||
| 専有面積/バルコニー面積 | 60.80㎡/11.10㎡ | ルーフバルコニー面積/テラス面積/専用庭面積 | -/-/- |
| 価格 | 5,980万円 | ||
| 管理費 | 12,800円 | ||
| 修繕積立金 | 14,590円 | 修繕積立基金 | - |
| 権利金 | - | 駐車場/月額料金 | 空無/17,000円 (非課税) 月額14,000~17,000円 |
| 土地の敷金/保証金 | -/- | 借地料/借地期間 | -/- |
| 土地権利 | 所有権 | 国土法届出要否 | 不要 |
| 用途地域 | 第一種中高層住居専用 | 地勢 | 平坦 |
| 種別/構造 | 中古マンション/鉄筋コンクリート | 向き | 南西 |
| 築年月(築年数) | 1997年 2月 (築29年) | ||
| 所在階/階建 | 4階/7階建 | 棟総戸数/販売戸数 | 39戸/1戸 |
| 管理組合有無 | 有 | 管理形態 | 管理会社に全部委託 |
| 管理員の勤務形態 | 巡回 | 管理会社 | 株式会社大京アステージ |
| 取引態様 | 一般媒介 | 現況 | 空家 |
| 引渡し | 即時 | 建築確認番号 | - |
| 物件番号 | 101399007 | 取引条件の有効期限 | 2026年04月30日 |
| リフォーム |
2026年4月 キッチン 浴室 トイレ 壁 床 全室 |
||
| 設備条件 |
|
||
| 備考 |
【アピールポイント】 ペット飼育可能! 南西・北西向きの角部屋なので、陽当たり・通風良好です! 3路線2駅利用可能です! 【リフォーム内容】~2026年4月室内リフォーム実施~ システムキッチン交換(食洗器・浄⽔器付)、浴室交換(追い炊き機能・浴室暖房乾燥機付)、洗⾯化粧台、温水洗浄便座交換、洗濯⽤防⽔パン、⽔栓交換、給湯器交換、専有部分内排⽔管⼀部交換、フローリング貼替、フロアタイル貼替、クロス貼替、建具交換、シューズボックス交換、ダウンライト設置、ハウスクリーニング等実施 【ライフインフォメーション】 ローソン 成増北口通り・・・徒歩1分 スーパーマーケット リコス成増3丁目店・・・徒歩3分 セブンイレブン 和光白子3丁目・・・徒歩2分 慈誠会慈誠会成増病院・・・徒歩4分 ダイソーMEGAドン・キホーテ成増店・・・徒歩11分 【学区域】 板橋区立成増ケ丘小学校・・・徒歩9分 板橋区立赤塚第二中学校・・・徒歩9分 |
||
| 取扱会社 |
|
||
| QRコード |
このQRコードを読み取ることで、スマホでも物件情報を確認できます。 |
||
※地図上に表示される物件の位置は付近住所に所在することを表すものであり、実際の物件所在地とは異なる場合がございます。
ライオンズヴィアーレ成増に関するこだわり条件から探す
板橋区の町名から探す