豊島区・板橋区・北区・中古マンション売買専門|ハウジングハーモニー・優和 > (マンション(売買))地域から探す > 豊島区 > 池袋パークハイツ
池袋パークハイツ:山手線池袋にも近くて便利。住まい探しをするなら山手線池袋周辺が良いでしょう。生活に必要不可欠な施設が揃っているので、快適な暮らしができます。不動産を購入される際は、ご連絡下さい。
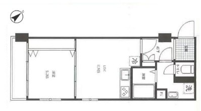
※写真や図と実際の現状とが異なる場合は現状を優先させていただきます。











(※元利均等方式 金利5.00%まで ※返済年数5~50年まで入力できます)
(※ボーナスは年2回で計算しています。1000万円まで入力できます)
(※物件購入時、その他諸費用が発生する場合がございます)
| 所在地 | 東京都豊島区東池袋2丁目60-2 | ||
|---|---|---|---|
| 交通 | |||
| 間取り/詳細 |
1DK DK 8.8帖 1室/洋室 4.7帖 1室 |
||
| 専有面積/バルコニー面積 | 37.91㎡/3.60㎡ | ルーフバルコニー面積/テラス面積/専用庭面積 | -/-/- |
| 価格 | 4,180万円 | ||
| 管理費 | 10,460円 | ||
| 修繕積立金 | 14,560円 | 修繕積立基金 | - |
| 権利金 | - | 駐車場/月額料金 | 空有/40,000円 (非課税) |
| 土地の敷金/保証金 | -/- | 借地料/借地期間 | -/- |
| 土地権利 | 所有権 | 国土法届出要否 | 不要 |
| 用途地域 | 商業 | 地勢 | 平坦 |
| 種別/構造 | 中古マンション/鉄骨鉄筋コンクリート | 向き | 南東 |
| 築年月(築年数) | 1972年 10月 (築53年) | ||
| 所在階/階建 | 6階/14階建 | 棟総戸数/販売戸数 | 103戸/1戸 |
| 管理組合有無 | 有 | 管理形態 | 管理会社に全部委託 |
| 管理員の勤務形態 | 巡回 | 管理会社 | 株式会社キノシタコミュニティ |
| 取引態様 | 仲介 | 現況 | 空家 |
| 引渡し | 相談 | 建築確認番号 | - |
| 物件番号 | 101353671 | 取引条件の有効期限 | 2026年03月27日 |
| 設備条件 |
|
||
| 備考 |
【こんな方におすすめ】 ・投資用・実需用・セカンドハウスと様々な用途を希望している ・住環境の安心感を重視する方 ・すぐ住めるきれいな住まいを探している 《アピールポイント》 民泊・事務所・店舗の利用可能です! 池袋駅から徒歩7分、交通アクセス良好です! 角部屋・陽当たり良好です! 令和5年リノベーション済み! 2015年耐震補強工事実施済み! 商業施設充実生活便利! ■2023年リフォーム施工済み!→間取り変更・全室クロス張替・フローリング張替・建具新規交換・室内給水、排水、給湯管交換・キッチン交換・洗面台、トイレ交換・浴室交換・スイッチ類交換・照明器具新設・ハウスクリーニング等実施。 【ライフインフォメーション】 マルエツプチ東池袋三丁目店・・・徒歩4分 業務スーパー上池袋店・・・徒歩8分 セブンイレブン東池袋3丁目南店・・・徒歩4分 スギ薬局東池袋店・・・徒歩7分 医療法人社団生全会池袋病院・・・徒歩7分 上池袋郵便局・・・徒歩5分 東池袋中央公園・・・徒歩7分 TOHOシネマズ池袋・・・徒歩8分 |
||
| 取扱会社 |
|
||
| QRコード |
このQRコードを読み取ることで、スマホでも物件情報を確認できます。 |
||
※地図上に表示される物件の位置は付近住所に所在することを表すものであり、実際の物件所在地とは異なる場合がございます。
池袋パークハイツに関するこだわり条件から探す