豊島区・板橋区・北区・中古マンション売買専門|ハウジングハーモニー・優和 > (マンション(売買))地域から探す > 豊島区 > サトミビル(池袋住宅)
「サトミビル」のここがイチオシ。ここに載っていない情報は、是非内覧でお確かめください。豊島区での新生活なら、お勧めのエリアは山手線池袋周辺でございます。お電話から優和までご連絡下さい。











(※元利均等方式 金利5.00%まで ※返済年数5~50年まで入力できます)
(※ボーナスは年2回で計算しています。1000万円まで入力できます)
(※物件購入時、その他諸費用が発生する場合がございます)
| 所在地 | 東京都豊島区南池袋3丁目9-5 | ||
|---|---|---|---|
| 交通 | |||
| 間取り/詳細 |
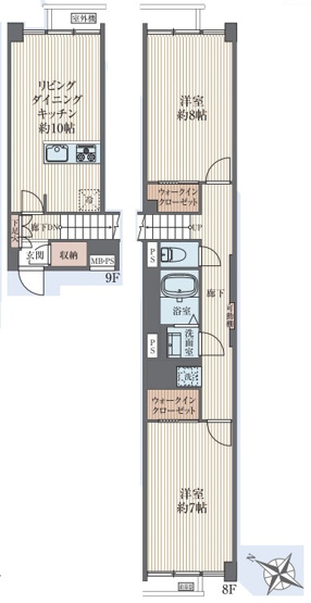
2LDK LDK 10.0帖 1室/洋室 8.0帖 1室/和室 7.0帖 1室 |
||
| 専有面積/バルコニー面積 | 75.99㎡/3.00㎡ | ルーフバルコニー面積/テラス面積/専用庭面積 | -/-/- |
| 価格 | 4,180万円 | ||
| 管理費 | 10,760円 | ||
| 修繕積立金 | 10,220円 | 修繕積立基金 | - |
| 権利金 | - | 駐車場/月額料金 | 無/- |
| 土地の敷金/保証金 | -/- | 借地料/借地期間 | 8,992円/2056年01月まで |
| 土地権利 | 旧法地上権 | 国土法届出要否 | 不要 |
| 用途地域 | 商業 | 地勢 | 平坦 |
| 種別/構造 | 中古マンション/鉄筋コンクリート | 向き | 南西 |
| 築年月(築年数) | 1967年 3月 (築59年) | ||
| 所在階/階建 | 8-9階/10階建 | 棟総戸数/販売戸数 | 72戸/1戸 |
| 管理組合有無 | - | 管理形態 | 管理会社に一部委託 |
| 管理員の勤務形態 | 巡回 | 管理会社 | 日本ハウズイング株式会社 |
| 取引態様 | 一般媒介 | 現況 | 空家 |
| 引渡し | 相談 | 建築確認番号 | - |
| 物件番号 | 93843931 | 取引条件の有効期限 | 2026年04月30日 |
| リフォーム |
2024年12月 キッチン 浴室 トイレ 壁 床 全室 |
||
| 設備条件 |
|
||
| 備考 |
「サトミビル(池袋住宅)」のここがイチオシ。私立 学習院中等科が徒歩9分で通学にも便利です。来客が一目でわかるTVインターホン付き。山手線池袋近辺は、交通アクセスが快適なエリアでございます。 ■リフォーム施工済み!→間取り変更・全室クロス張替・フローリング張替・建具新規交換・室内給水、排水、給湯管交換・システムキッチン交換・洗面台、トイレ交換・浴室交換(追い焚き機能)・スイッチ類交換・照明器具新設・TVインターフォン新設・ハウスクリーニング等実施。 ■管理規約・長期修繕計画書あり! ■固定資産税・都市計画税 年額35,209円(令和6年度) ■エアコン1台新設!マンション敷地内に商業施設があります! ■地代は、年額107,896円(毎年変動があります。) ■室内は、メゾネットタイプなので、戸建て感覚も経験できるお部屋となっています。 |
||
| 取扱会社 |
|
||
| QRコード |
このQRコードを読み取ることで、スマホでも物件情報を確認できます。 |
||
※地図上に表示される物件の位置は付近住所に所在することを表すものであり、実際の物件所在地とは異なる場合がございます。
サトミビル(池袋住宅)に関するこだわり条件から探す