豊島区・板橋区・北区・中古マンション売買専門|ハウジングハーモニー・優和 > (マンション(売買))地域から探す > 板橋区 > スカイティアラ ウエスト
新生活を失敗せずスタートさせたいならこちら「スカイティアラ ウエスト」はいかがでしょうか。宅配ボックス付きで日中のご不在時も荷物を受け取れます。中古ながらも綺麗な室内と魅力的な住環境のマンションです。
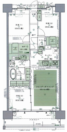
※写真や図と実際の現状とが異なる場合は現状を優先させていただきます。











(※元利均等方式 金利5.00%まで ※返済年数5~50年まで入力できます)
(※ボーナスは年2回で計算しています。1000万円まで入力できます)
(※物件購入時、その他諸費用が発生する場合がございます)
| 所在地 | 東京都板橋区小豆沢1丁目2-19 | ||
|---|---|---|---|
| 交通 | |||
| 間取り/詳細 |
3LDK LDK 12.5帖 1室/洋室 6.5帖 1室/洋室 5.2帖 1室/洋室 5.0帖 1室 ウォークインクローゼット |
||
| 専有面積/バルコニー面積 | 74.75㎡/11.98㎡ | ルーフバルコニー面積/テラス面積/専用庭面積 | -/47.35㎡/- |
| 価格 | 7,480万円 | ||
| 管理費 | 20,165円 | ||
| 修繕積立金 | 20,660円 | 修繕積立基金 | - |
| 権利金 | - | 駐車場/月額料金 | 空有/20,000円 (非課税) 空き要確認 |
| 土地の敷金/保証金 | -/- | 借地料/借地期間 | -/- |
| 土地権利 | 所有権 | 国土法届出要否 | 不要 |
| 用途地域 | 準工業 | 地勢 | 平坦 |
| 種別/構造 | 中古マンション/鉄筋コンクリート | 向き | 南東 |
| 築年月(築年数) | 2015年 4月 (築10年) | ||
| 所在階/階建 | 8階/18階建 | 棟総戸数/販売戸数 | 621戸/1戸 |
| 管理組合有無 | 有 | 管理形態 | 管理会社に全部委託 |
| 管理員の勤務形態 | 常駐 | 管理会社 | 住友不動産建物サービス株式会社 |
| 取引態様 | 仲介 | 現況 | 空家 |
| 引渡し | 相談 | 建築確認番号 | - |
| 物件番号 | 100489871 | 取引条件の有効期限 | 2026年02月02日 |
| 設備条件 |
|
||
| 備考 |
【こんな方におすすめ】 おしゃれなアクセントウォールを探している! 空間はスッキリ見せたいけど、生活感は隠しきれない! 子どもやペットがいても、空気はきれいに保ちたい! 【室内その他】 ・アウトフレーム構造の為、部屋の4隅がスッキリ ・リビング天井⾼さ2m50㎝ ・LDにTES式床暖房・エコジョーズ ・24時間⼩⾵量換気システム・可動間仕切り ・バルコニーに外⽔道とスロップシンク 【共⽤部その他】 ・コンシェルジュサービス (タクシー⼿配・コピー・クリーニング・宅配など) ・24時間ゴミ出し可能 ・2重床、2重天井 ・総敷地⾯積16,000㎡以上、全621⼾ ・1000本以上の⽊々等やオープンスペース ・開放感のあるスケール感のあるエントランス 【ライフインフォメーション】 まいばすけっと小豆沢1丁目・・・徒歩1分 セブンイレブン板橋小豆沢1丁目・・・徒歩1分 ローソン赤羽西・・・徒歩3分 東武ストア小豆沢店・・・徒歩3分 【学区域】 板橋区立志村第二小学校・・・徒歩6分 板橋区立志村第二中学校・・・徒歩1分 |
||
| 取扱会社 |
|
||
| QRコード |
このQRコードを読み取ることで、スマホでも物件情報を確認できます。 |
||
※地図上に表示される物件の位置は付近住所に所在することを表すものであり、実際の物件所在地とは異なる場合がございます。
スカイティアラ ウエストに関するこだわり条件から探す
板橋区の町名から探す