豊島区・板橋区・北区・中古マンション売買専門|ハウジングハーモニー・優和 > (マンション(売買))地域から探す > 豊島区 > GSハイム巣鴨
新着情報:GSハイム巣鴨の空室情報ならコチラ。立地条件の良い中古マンションは生活の質を高めてくれます。住み心地にこだわった1LDKのお部屋は、自由度が高く快適な生活を送れます。
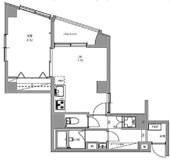
※写真や図と実際の現状とが異なる場合は現状を優先させていただきます。











(※元利均等方式 金利5.00%まで ※返済年数5~50年まで入力できます)
(※ボーナスは年2回で計算しています。1000万円まで入力できます)
(※物件購入時、その他諸費用が発生する場合がございます)
| 所在地 | 東京都豊島区巣鴨3丁目33ー6 | ||
|---|---|---|---|
| 交通 | |||
| 間取り/詳細 |
1LDK LDK 8.0帖 1室/洋室 6.0帖 1室 |
||
| 専有面積/バルコニー面積 | 37.80㎡/2.88㎡ | ルーフバルコニー面積/テラス面積/専用庭面積 | -/-/- |
| 価格 | 3,480万円 | ||
| 管理費 | 10,600円 | ||
| 修繕積立金 | 1,060円 | 修繕積立基金 | - |
| 権利金 | - | 駐車場/月額料金 | 無/- |
| 土地の敷金/保証金 | -/- | 借地料/借地期間 | -/- |
| 土地権利 | 所有権 | 国土法届出要否 | 不要 |
| 用途地域 | 商業 | 地勢 | 平坦 |
| 種別/構造 | 中古マンション/鉄骨鉄筋コンクリート | 向き | 北東 |
| 築年月(築年数) | 1982年 6月 (築43年) | ||
| 所在階/階建 | 5階/11階建 地下1階 | 棟総戸数/販売戸数 | 46戸/1戸 |
| 管理組合有無 | 有 | 管理形態 | 自主管理 |
| 管理員の勤務形態 | - | 管理会社 | - |
| 取引態様 | 一般媒介 | 現況 | 空家 |
| 引渡し | 相談 | 建築確認番号 | - |
| 物件番号 | 98511925 | 取引条件の有効期限 | 2025年12月27日 |
| リフォーム |
2025年7月 キッチン 浴室 トイレ 壁 床 全室 |
||
| 設備条件 |
|
||
| 備考 |
【こんな方におすすめ】 おしゃれなアクセントウォールを探している! 空間はスッキリ見せたいけど、生活感は隠しきれない! 子どもやペットがいても、空気はきれいに保ちたい! 【アピールポイント】 固定資産税:51,830円(和6年度 関係証明書 参照) 【リフォーム内容】~2025年7月室内リフォーム実施~ システムキッチン(食洗機付)、ユニットバス(浴室乾燥機付)、給湯器 (追い炊き機能付、トイレ・ 洗面化粧台交換、フローリング交換、建具・玄関収納交換、ダウンライト・シーリングライト、クロス全張替、モニター付きインターホン新設、ハウスクリーニング等実施 【ライフインフォメーション】 肉のハナマサ巣鴨店・・・徒歩2分 まいばすけっと巣鴨3丁目店・・・徒歩3分 ファミリーマート巣鴨地蔵通り店・・・徒歩1分 セブンイレブン豊島巣鴨白山通り店・・・徒歩4分 マクドナルド巣鴨店・・・徒歩3分 コメダ珈啡店巣鴨店・・・徒歩4分 【学区域】 豊島区立仰高小学校・・・徒歩4分 豊島区立駒込中学校・・・徒歩11分 |
||
| 取扱会社 |
|
||
| QRコード |
このQRコードを読み取ることで、スマホでも物件情報を確認できます。 |
||
※地図上に表示される物件の位置は付近住所に所在することを表すものであり、実際の物件所在地とは異なる場合がございます。
GSハイム巣鴨に関するこだわり条件から探す