豊島区・板橋区・北区・中古マンション売買専門|ハウジングハーモニー・優和 > (マンション(売買))地域から探す > 横浜市中区 > アール・ケープラザ横濱Ⅵ
新着情報:アール・ケープラザ横濱Ⅵの空室情報ならコチラ。ファミリーマート 雨宮音楽通り店まで徒歩1分と近場にコンビニがあるのもポイント。優和なら、京浜東北線桜木町周辺のお住まいを紹介しております。
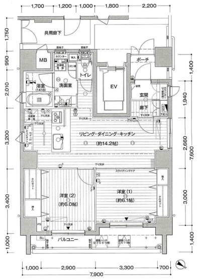
※写真や図と実際の現状とが異なる場合は現状を優先させていただきます。











(※元利均等方式 金利5.00%まで ※返済年数5~50年まで入力できます)
(※ボーナスは年2回で計算しています。1000万円まで入力できます)
(※物件購入時、その他諸費用が発生する場合がございます)
| 所在地 | 神奈川県横浜市中区花咲町2丁目66-3 | ||
|---|---|---|---|
| 交通 | |||
| 間取り/詳細 |
2LDK LDK 14.2帖 1室/洋室 6.1帖 1室/洋室 6.0帖 1室 |
||
| 専有面積/バルコニー面積 | 64.64㎡/8.01㎡ | ルーフバルコニー面積/テラス面積/専用庭面積 | -/-/- |
| 価格 | 7,500万円 | ||
| 管理費 | 13,970円 | ||
| 修繕積立金 | 9,180円 | 修繕積立基金 | - |
| 権利金 | - | 駐車場/月額料金 | 空無/- |
| 土地の敷金/保証金 | -/- | 借地料/借地期間 | -/- |
| 土地権利 | 所有権 | 国土法届出要否 | 不要 |
| 用途地域 | 商業 | 地勢 | 平坦 |
| 種別/構造 | 中古マンション/鉄筋コンクリート | 向き | 北東 |
| 築年月(築年数) | 2013年 2月 (築12年) | ||
| 所在階/階建 | 6階/10階建 | 棟総戸数/販売戸数 | 28戸/1戸 |
| 管理組合有無 | 有 | 管理形態 | 管理会社に全部委託 |
| 管理員の勤務形態 | 日勤 | 管理会社 | ケイアール株式会社 |
| 取引態様 | 仲介 | 現況 | 空家 |
| 引渡し | 相談 | 建築確認番号 | - |
| 物件番号 | 98205805 | 取引条件の有効期限 | 2025年11月25日 |
| 設備条件 |
|
||
| 備考 |
【こんな方におすすめ】 空間はスッキリ見せたいけど、生活感は隠しきれない! 子どもやペットがいても、空気はきれいに保ちたい! 【おすすめポイント】 ・北東・北西・南東の角部屋、各部屋に開口部がありますので、陽当たり・通風良好です! ・冬場のヒートショックや湿気を抑え、カビの発生を防ぎ、お掃除の手間を減らす浴室乾燥暖房機能付! ・ペット飼育可能(飼育細則あり・1住戸1匹まで)! ・安心のオートロック及びTVモニター付きインターホン!さらに防犯センサー付! 【設備・共用設備】 ペット飼育可能、全住戸防犯センサー付き! 食器洗浄乾燥機、水栓機能付トイレ、アイランド型システムキッチン、床暖房! 【ライフインフォメーション】 成城石井シァル桜木町アネックス店・・・徒歩3分 ファミリーマート雨宮音楽通り店・・・徒歩1分 サミットストア桜木町コレットマーレ店・・・徒歩6分 セブンイレブン横浜桜木町駅前店・・・徒歩2分 ダイソーぴおシティ桜木町店・・・徒歩2分 【学区域】 横浜市立本町小学校・・・徒歩2分 横浜市立横浜吉田中学校・・・徒歩14分 |
||
| 条件(その他) | 町会費月:300円 | ||
| 取扱会社 |
|
||
| QRコード |
このQRコードを読み取ることで、スマホでも物件情報を確認できます。 |
||
※地図上に表示される物件の位置は付近住所に所在することを表すものであり、実際の物件所在地とは異なる場合がございます。
アール・ケープラザ横濱Ⅵに関するこだわり条件から探す
横浜市中区の町名から探す