豊島区・板橋区・北区・中古マンション売買専門|ハウジングハーモニー・優和 > (マンション(売買))地域から探す > 北区 > 駒込八幡坂ガーデニア
徒歩7分の距離に北区立 田端中学校があるのも魅力。月額利用料金25000円の駐車場です。部屋数も充実で家族向けの2LDKになっております。北区での新生活を、当社が全力でサポートいたします。
※写真や図と実際の現状とが異なる場合は現状を優先させていただきます。











(※元利均等方式 金利5.00%まで ※返済年数5~50年まで入力できます)
(※ボーナスは年2回で計算しています。1000万円まで入力できます)
(※物件購入時、その他諸費用が発生する場合がございます)
| 所在地 | 東京都北区田端3丁目23-15 | ||
|---|---|---|---|
| 交通 | |||
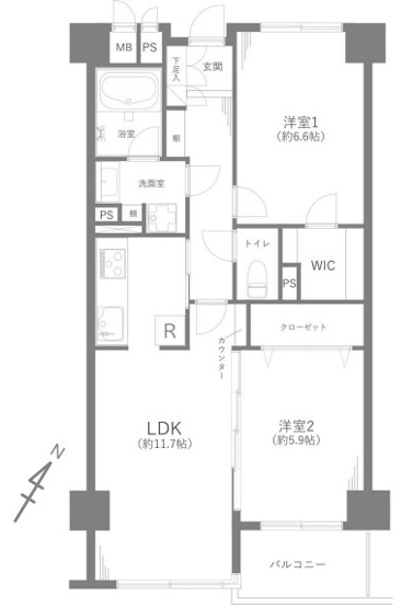
| 間取り/詳細 |
2LDK LDK 11.7帖 1室/洋室 6.6帖 1室/洋室 5.9帖 1室 |
||
| 専有面積/バルコニー面積 | 59.09㎡/4.05㎡ | ルーフバルコニー面積/テラス面積/専用庭面積 | -/-/- |
| 価格 | 6,690万円 | ||
| 管理費 | 9,840円 | ||
| 修繕積立金 | 15,360円 | 修繕積立基金 | - |
| 権利金 | - | 駐車場/月額料金 | 空有/25,000円 (税込) |
| 土地の敷金/保証金 | -/- | 借地料/借地期間 | -/- |
| 土地権利 | 所有権 | 国土法届出要否 | 不要 |
| 用途地域 | 第一種住居 | 地勢 | 平坦 |
| 種別/構造 | 中古マンション/鉄筋コンクリート | 向き | 南西 |
| 築年月(築年数) | 1986年 2月 (築39年) | ||
| 所在階/階建 | 5階/8階建 | 棟総戸数/販売戸数 | 67戸/1戸 |
| 管理組合有無 | 有 | 管理形態 | 管理会社に全部委託 |
| 管理員の勤務形態 | 日勤 | 管理会社 | トーメン建物管理株式会社 |
| 取引態様 | 一般媒介 | 現況 | 空家 |
| 引渡し | 即時 | 建築確認番号 | - |
| 物件番号 | 97779163 | 取引条件の有効期限 | 2025年11月24日 |
| リフォーム |
2025年9月 キッチン 浴室 トイレ 壁 床 全室 |
||
| 設備条件 |
|
||
| 備考 |
【おすすめポイント】 セキュリティ面安心なオートロック! 宅配ボックス・エレベーターで快適な暮らし! ペット飼育可!(細則あり、1住戸1匹) 【リフォーム内容】~2025年9月室内リフォーム実施~ キッチン(システムキッチン 浄水器・⾷洗機付:W2100 浴室(ユニットバス 追焚・換気乾燥機付:1317) 洗面室(洗面化粧台、洗濯用水栓、洗濯パン) トイレ(温水洗浄便座⼀体型便器) その他(照明器具、建具、スイッチコンセント、給湯器) 床:フローリング貼(LDK、洋室全室、廊下)フロアタイル貼(玄関、洗面室、トイレ) ハウスクリーニング、給水・給湯・追焚・排水管交換 【ライフインフォメーション】 まいばすけっと田端4丁目店・・・徒歩4分 セブンイレブン田端3丁目店・・・徒歩6分 ローソン田端六丁目店・・・徒歩6分 ウエルシア田端二丁目店・・・徒歩7分 田端公園・・・徒歩2分 【学区域】 北区立田端小学校・・・徒歩3分 北区立田端中学校・・・徒歩4分 |
||
| 取扱会社 |
|
||
| QRコード |
このQRコードを読み取ることで、スマホでも物件情報を確認できます。 |
||
※地図上に表示される物件の位置は付近住所に所在することを表すものであり、実際の物件所在地とは異なる場合がございます。
駒込八幡坂ガーデニアに関するこだわり条件から探す