豊島区・板橋区・北区・中古マンション売買専門|ハウジングハーモニー・優和 > (マンション(売買))地域から探す > 豊島区 > ヒルクレスト駒込
ワンルームの物件は単身者の方からのニーズがあります。オートロックが付いているので、空き巣などの危険も減らすことができます。駅へのアクセスも良好で、物件から徒歩1分圏内に駅がございます。
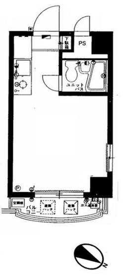
※写真や図と実際の現状とが異なる場合は現状を優先させていただきます。











(※元利均等方式 金利5.00%まで ※返済年数5~50年まで入力できます)
(※ボーナスは年2回で計算しています。1000万円まで入力できます)
(※物件購入時、その他諸費用が発生する場合がございます)
| 所在地 | 東京都豊島区駒込1丁目34-2 | ||
|---|---|---|---|
| 交通 | |||
| 間取り/詳細 |
1R 洋室 6.0帖 1室 |
||
| 専有面積/バルコニー面積 | 17.49㎡/3.01㎡ | ルーフバルコニー面積/テラス面積/専用庭面積 | -/-/- |
| 価格 | 1,880万円 | ||
| 管理費 | 5,060円 | ||
| 修繕積立金 | 4,200円 | 修繕積立基金 | - |
| 権利金 | - | 駐車場/月額料金 | -/- |
| 土地の敷金/保証金 | -/- | 借地料/借地期間 | -/- |
| 土地権利 | 所有権 | 国土法届出要否 | 不要 |
| 用途地域 | 商業 | 地勢 | 平坦 |
| 種別/構造 | 中古マンション/鉄骨鉄筋コンクリート | 向き | 北東 |
| 築年月(築年数) | 1980年 4月 (築45年) | ||
| 所在階/階建 | 6階/9階建 地下1階 | 棟総戸数/販売戸数 | 57戸/1戸 |
| 管理組合有無 | 有 | 管理形態 | 管理会社に全部委託 |
| 管理員の勤務形態 | 日勤 | 管理会社 | 株式会社菱サ・ビルウェア |
| 取引態様 | 一般媒介 | 現況 | 空家 |
| 引渡し | 相談 | 建築確認番号 | - |
| 物件番号 | 99048071 | 取引条件の有効期限 | 2025年12月27日 |
| 設備条件 |
|
||
| 備考 |
【こんな方におすすめ】 ・投資用・実需用・セカンドハウスと様々な用途を希望している ・住環境の安心感を重視する方 ・リフォームを自分仕様にて、検討されている 【アピールポイント】 空室・店舗・事務所利用可能! 管理体制良好の分譲マンションです! 角部屋・SRC構造・外壁タイル張り・オートロック付! 総戸数56戸(店舗3戸・事務所3戸) 【ライフインフォメーション】 デニーズ 駒込駅前店・・・徒歩1分 どらっぐぱぱす駒込駅前店・・・徒歩2分 日枝神社・・・徒歩1分 三菱UFJ銀行駒込支店・・・徒歩3分 ケンタッキーフライドチキン駒込店・・・徒歩2分 ローソン駒込駅前・・・徒歩1分 【学区域】 豊島区立駒込小学校・・・徒歩7分 豊島区立駒込中学校・・・徒歩8分 |
||
| 取扱会社 |
|
||
| QRコード |
このQRコードを読み取ることで、スマホでも物件情報を確認できます。 |
||
※地図上に表示される物件の位置は付近住所に所在することを表すものであり、実際の物件所在地とは異なる場合がございます。
ヒルクレスト駒込に関するこだわり条件から探す